История комплекса, который вдохновлён Вавилонской башней, но построен ради природы: почему эта мексиканская новинка уже стала иконой устойчивого дизайна и магнитом для путешественников.
Содержание
- Как появился заказ: когда архитектуру выбирают по философии
- Участок: вырубка в сердце джунглей
- Главная идея: башня, которая не возвышается, а соединяет
- Зелёный двор: архитектурная регенерация в действии
- 59 апартаментов, ни один не похож на другой
- Ступени как световые туннели: необычная инженерия
- Материалы: когда древняя техника опережает современные стандарты
- Для кого создавался комплекс: туристы, местные, nomad-культура
- Идеология проекта: архитектура как посредник
- Почему проект сравнивают с «новым чудом света»
Есть проекты, о которых говорят в профессиональной среде. Есть проекты, которые попадают в журналы. А есть Babel — комплекс, который неожиданно стал культурным феноменом ещё до полной сдачи.
Эта постройка на окраине Тулума выглядит так, будто её вынули из древней легенды, слегка подправили под климат Юкатана и поставили среди джунглей, которые вот-вот проглотят бетон. Но суть Babel — не в романтике форм. Это проект, который переосмысливает роль архитектуры: не разрушать среду, а возрождать её.
Именно поэтому комплекс сравнивают не с Вавилонской башней, а с попыткой исправить ошибки человечества.

Как появился заказ: когда архитектуру выбирают по философии
Мексиканская студия V Taller получила заказ не случайно. За последние годы архитекторы прославились тем, что умеют работать с природой — не маскируя бетон листьями, а интегрируя пространство в биосферу так, чтобы оба элемента жили в симбиозе.

Их кредо звучит как манифест: «Эмоции движут творчеством, а память предков направляет его. Архитектура обязана не только защищать человека, но и возвращать земле то, что мы у неё забираем».
Именно такой подход и понадобился Тулуму — городу, который за 15 лет превратился из пляжной деревушки в мирную версию Ибицы, а теперь пытается спасти оставшиеся леса.



Участок: вырубка в сердце джунглей
На первый взгляд, место для строительства выглядело печально. Это была красивая, но мёртвая пустота — прямоугольник земли, обнажённый после неконтролируемой вырубки. Для архитекторов V Taller это стало вызовом:
нужно построить комфортный комплекс для туристов и местных, но при этом восстановить уничтоженный участок леса. И заказчики добавили ещё одну сложность: сделать отсылку к мифу о Вавилонской башне. Но не в духе разрушения и гордыни. Нужно было создать символ единства — «мост между человеком и природой».
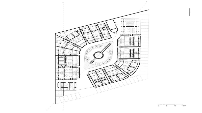
Главная идея: башня, которая не возвышается, а соединяет
Если вы видите фото Babel — внимание всегда падает на центральную башню. Но эта башня не для «впечатлить туристов высотой». Она выполняет три роли:
- Символическая — метафора древнего знания и человеческого стремления к гармонии.
- Ландшафтная — сердце комплекса, вокруг которого «дышат» дворы и растения.
- Психологическая — место тишины, куда поднимаются, чтобы почувствовать себя частью пространства.
К башне ведёт лестница, пересекающая небольшой ров, в котором расположен круглый бассейн.
На верхнем уровне — медитационный сад, укрытый от ветра и наполненный тенью.
Сквозь треугольное отверстие в потолке ночью видно звёздное небо — такой «астральный перископ».

Это место, где архитектура перестает быть функцией и становится опытом.
Зелёный двор: архитектурная регенерация в действии
Главный секрет Babel — даже не башня, а внутренний двор, полностью засаженный местной растительностью.
Он играет ключевую роль в восстановлении микроэкосистемы:
- притягивает птиц и насекомых,
- возвращает тень и влажность почве,
- создаёт естественную вентиляцию,
- регулирует температуру комплекса,
- формирует «зелёный коридор», соединяющий фрагменты джунглей.
По сути, V Taller построили не комплекс, а механизм по оздоровлению территории.
И это не маркетинг — биологи участвовали во всех стадиях проекта.










59 апартаментов, ни один не похож на другой
Комплекс включает 59 жилых единиц, расположенных на трёх уровнях. Каждая из них отличается формой, видами и сводами благодаря радиальной архитектуре.
Что делает планировки особенными:
- квартиры внизу выходят прямо во двор, через арочные колоннады;
- средний уровень имеет перевёрнутые полукруглые окна, создающие «перевернутые горизонты»;
- верхний этаж получил двусветные зоны, огромные овальные окна и частные террасы.
Все квартиры объединяет общее — целенаправленно созданная игра света и тени. Архитекторы стремились, чтобы в любом месте комплекса человек ощущал связь с открытым пространством.
Ступени как световые туннели: необычная инженерия
Одной из фишек комплекса стали лестницы. Они узкие, высокие и при этом удивительно светлые.
Причина в том, что V Taller сделали их вертикальными световыми каналами, по которым дневной свет проникает в глубину здания.
Это решает сразу несколько задач:
- улучшает проветривание,
- снижает потребность в кондиционировании,
- создаёт естественную навигацию — люди идут «на свет».









Материалы: когда древняя техника опережает современные стандарты
Стены комплекса покрыты материалом под названием чукум — это традиционная известняковая штукатурка, распространённая на Юкатане. Её использовали ещё цивилизации майя.
Почему архитекторы выбрали именно её?
- она полностью влагостойкая;
- создаёт бесшовные поверхности;
- регулирует температуру в помещениях;
- долговечна, не трескается и не выгорает;
- экологична и естественно взаимодействует с окружающим климатом.
Внутри использовали дерево тропических пород, глиняные элементы, тёплые текстуры.
Каждый материал выбран так, чтобы возвращать человеку тактильность, которая часто исчезает в современных зданиях.
Для кого создавался комплекс: туристы, местные, nomad-культура
Babel — редкий проект, который работает и как жилой комплекс, и как отель. Часть квартир принадлежит постоянным владельцам, часть сдаётся посуточно.
Это создаёт живое сообщество, где смешиваются:
- местные творческие жители;
- айтишники, работающие в коворкинге;
- йоги и практики осознанности:
- туристы, ищущие «более тихий Тулум».
Для них на территории построили:
- большой коворкинг,
- спа-комплекс с травяными банями,
- массажные комнаты,
- дзен-сад,
- ресторан и бар,
- студию йоги и зоны для медитации.
Комплекс живёт по принципу slow living, но без отказа от комфорта.
Идеология проекта: архитектура как посредник
Архитекторы неоднократно подчёркивали, что Babel — это не просто здание, а переосмысление роли архитектуры: не контроль, не доминирование, не захват территории, а посредничество между человеком и природой.
Проект построен на:
- грамотной биоклиматической логике,
- уважении к местным материалам,
- оптимальном использовании света,
- создании прохлады без технологий,
- работе с экосистемными процессами.
Babel доказывает, что архитектура может восстанавливать землю, а не вытеснять её.
Почему проект сравнивают с «новым чудом света»
Babel стал вирусным по трём причинам:
- Он красиво выглядит на фото — башня, двор, своды, текстуры.
- Он идейно сильный — редкое качество для коммерческих проектов.
- Он появился в момент, когда туризм в Тулуме достиг критической точки, а мировая архитектура ищет путь к устойчивости.
На фоне глобальной дискуссии о климате этот комплекс стал примером того, что регенерация может начаться с одного участка земли если архитекторы делают свою работу честно.
Гостинично-жилой комплекс Babel — это не просто красивая постройка. Это модель будущего, где архитектура — двигатель восстановления, а не источник ущерба.
Он объединил древние знания майя, современные инженерные решения и философию уважения к природе. И, похоже, именно такие проекты и будут формировать международную повестку в ближайшие годы.
В джунглях Тулума выросла башня, которая не бросает вызов небесам —
она протягивает руку земле.
Ранее мы также писали про светящийся мексиканский цемент и рассказывали про Ferrocarril de Cuernavaca 780 — самое тонкое здание в Мехико: как архитекторы создают вертикальный город будущего.
